Community House

Papagos, Greece

2020 - 2023

430 sq.m.

Completed

Located in Papagos, a suburban area close to central Athens, Community House is a three-storey residential building designed for the families of two close friends on a 480 sq.m. plot. The project emerged from a shared desire to live together while preserving autonomy and privacy, forming a “small community” within a single building. Sharing the cost of land acquisition also played a key role in making the project feasible.
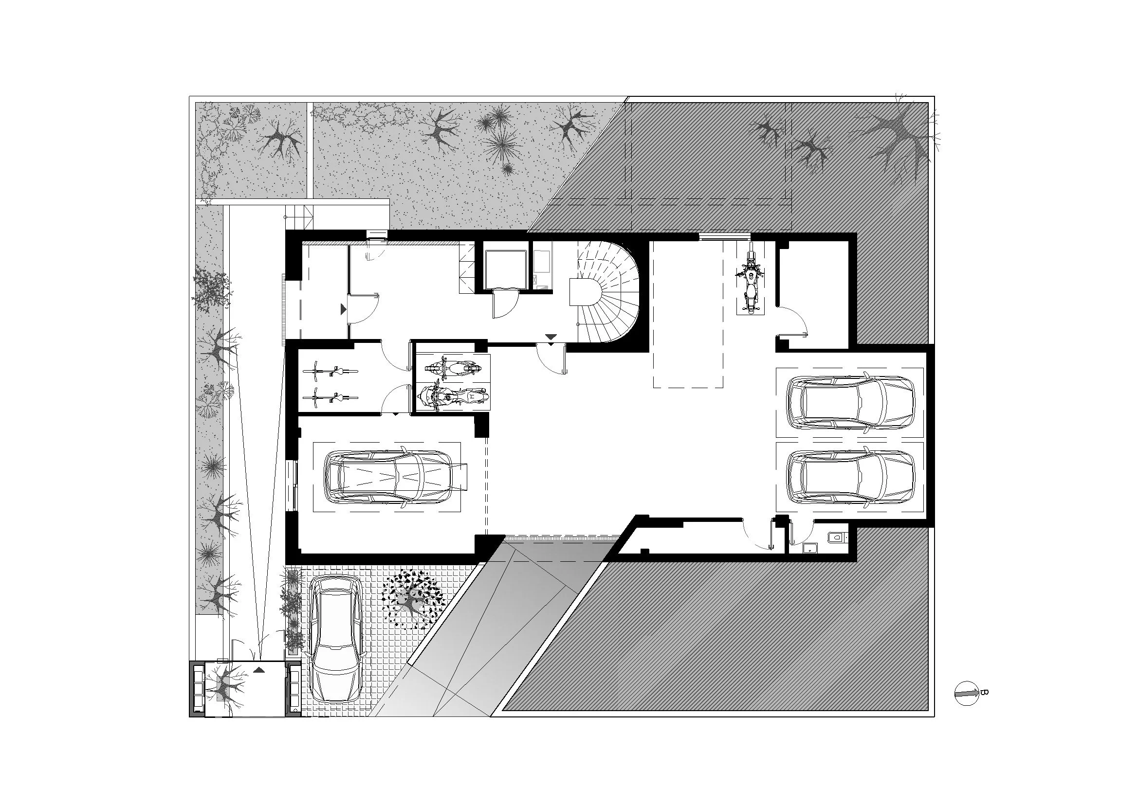
The building is organized along a North–South axis, following the natural slope of the site. The design is structured around two fully independent dwellings, each tailored to the needs of its family in terms of size, internal circulation, and relationship to the outdoors. Privacy is ensured by placing the residences on different levels and orienting their main living spaces in opposite north–south directions: the ground-floor dwelling faces north, benefiting from a cooler microclimate and open views to an undeveloped plot, while the upper maisonette faces south, enjoying optimal sunlight and framed views toward Mount Hymettus. As the concept evolved during the pandemic, the need for direct access to greenery and the outdoors became a key factor in the design. A vertical sequence of open spaces alternates between collective gathering areas and more secluded zones, allowing for different levels of interaction. The sculptural central circulation core and two external staircases connect the courtyard, balconies, and the planted roof with the swimming pool into a continuous network of communal zones. These outdoor areas and staircases are carved out of the main volume rather than added to it, shaping a sculptural volume, further enhanced by the use of white as the dominant colour. The planted roof serves as the primary collective space, offering areas for swimming, cooking, and dining with panoramic views toward Mount Hymettus and the city, while the semi-basement functions as a flexible multipurpose zone for parking, making, sports, and social gatherings.
Beyond its physical form, Community House operates as a living, social organism—constantly activated by everyday interactions, movement, play, and shared routines—proposing a contemporary model of urban living based on human scale, shared living, and strong interpersonal relationships.

making of

Previous
Previous

Dwell

Next
Next

Nine